Ein- und Mehrfamilienhaus
Rutschwil, Ortsteil der Gemeinde Dägerlen, liegt nur 8 Kilometer von Winterthur entfernt und ist doch eine ausgesprochen ruhige, schön gelegene Landgemeinde. Fünf Dörfer bilden die politische Gemeinde Dägerlen: Bänk, Berg, Dägerlen, Oberwil und Rutschwil. Die Stimmungsbilder vermitteln einen sehr guten Eindruck dieser ausserordentlich schönen Landschaft.
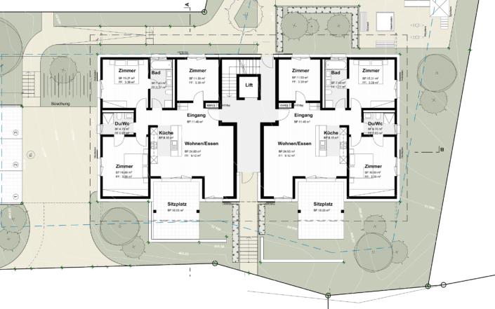
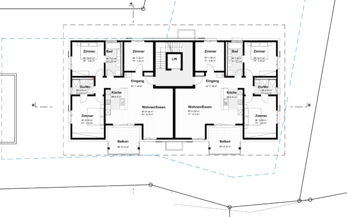
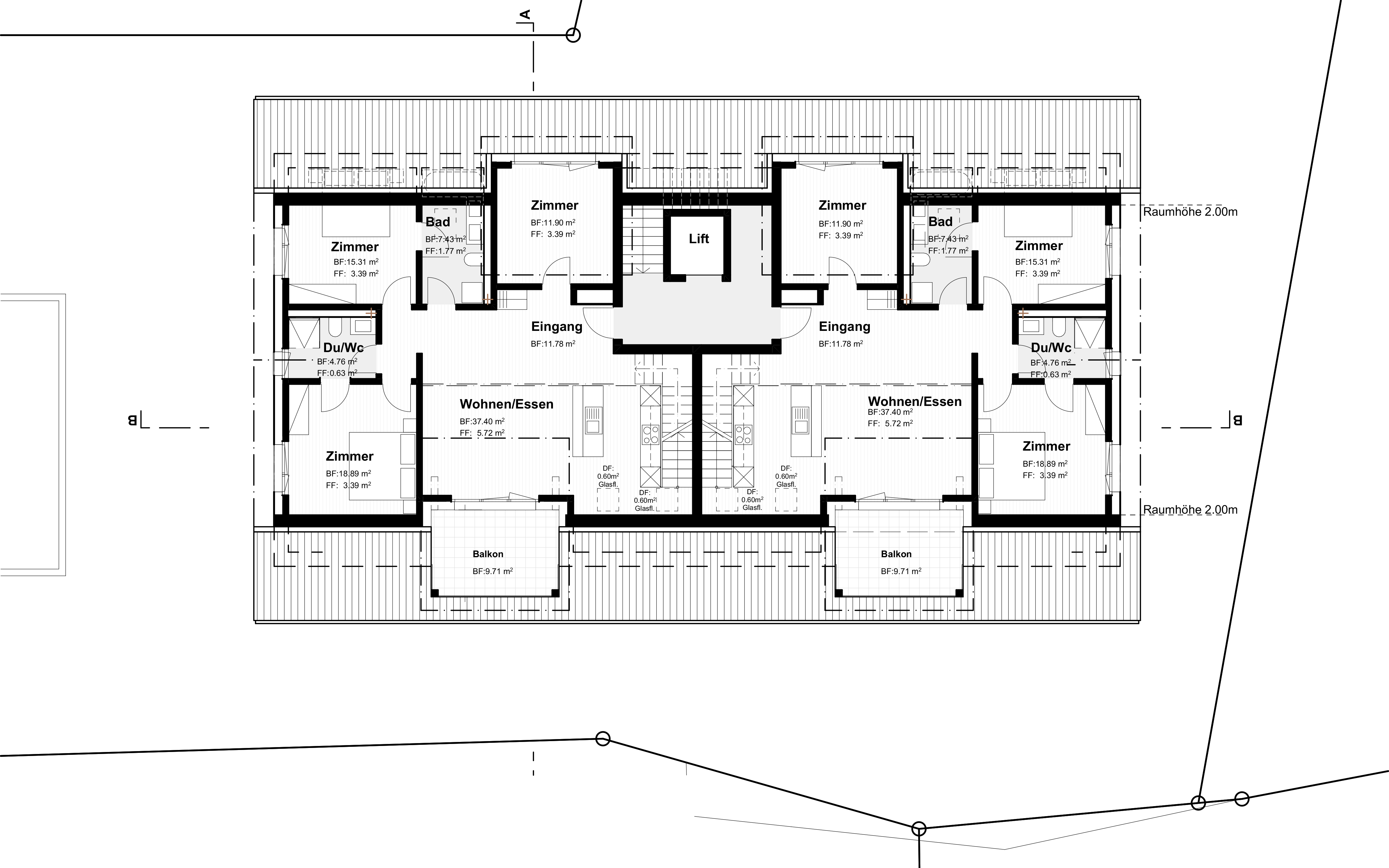
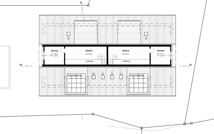
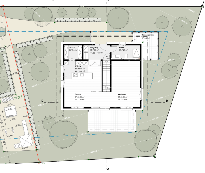
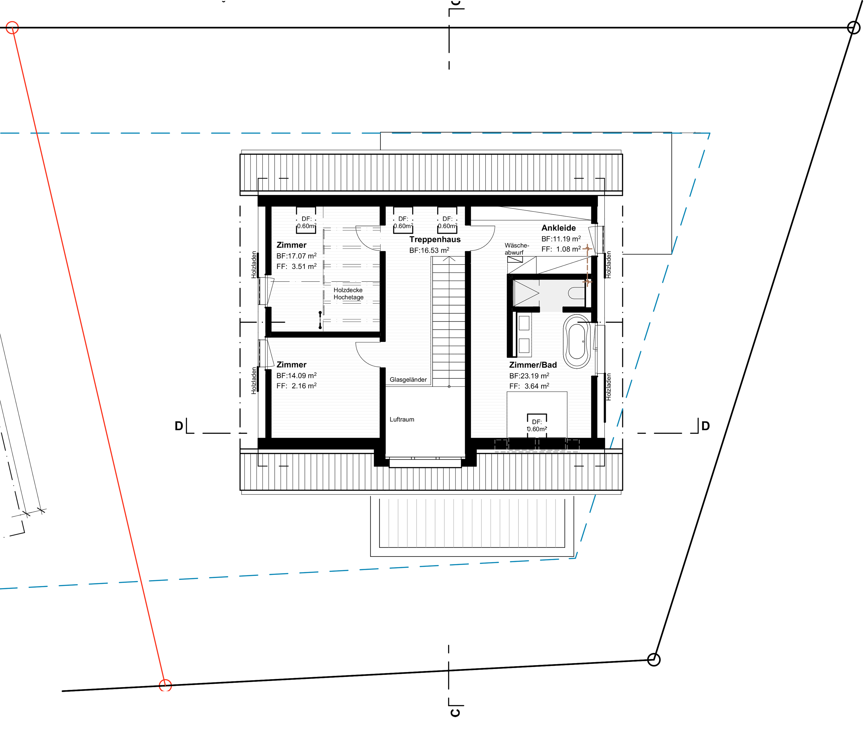
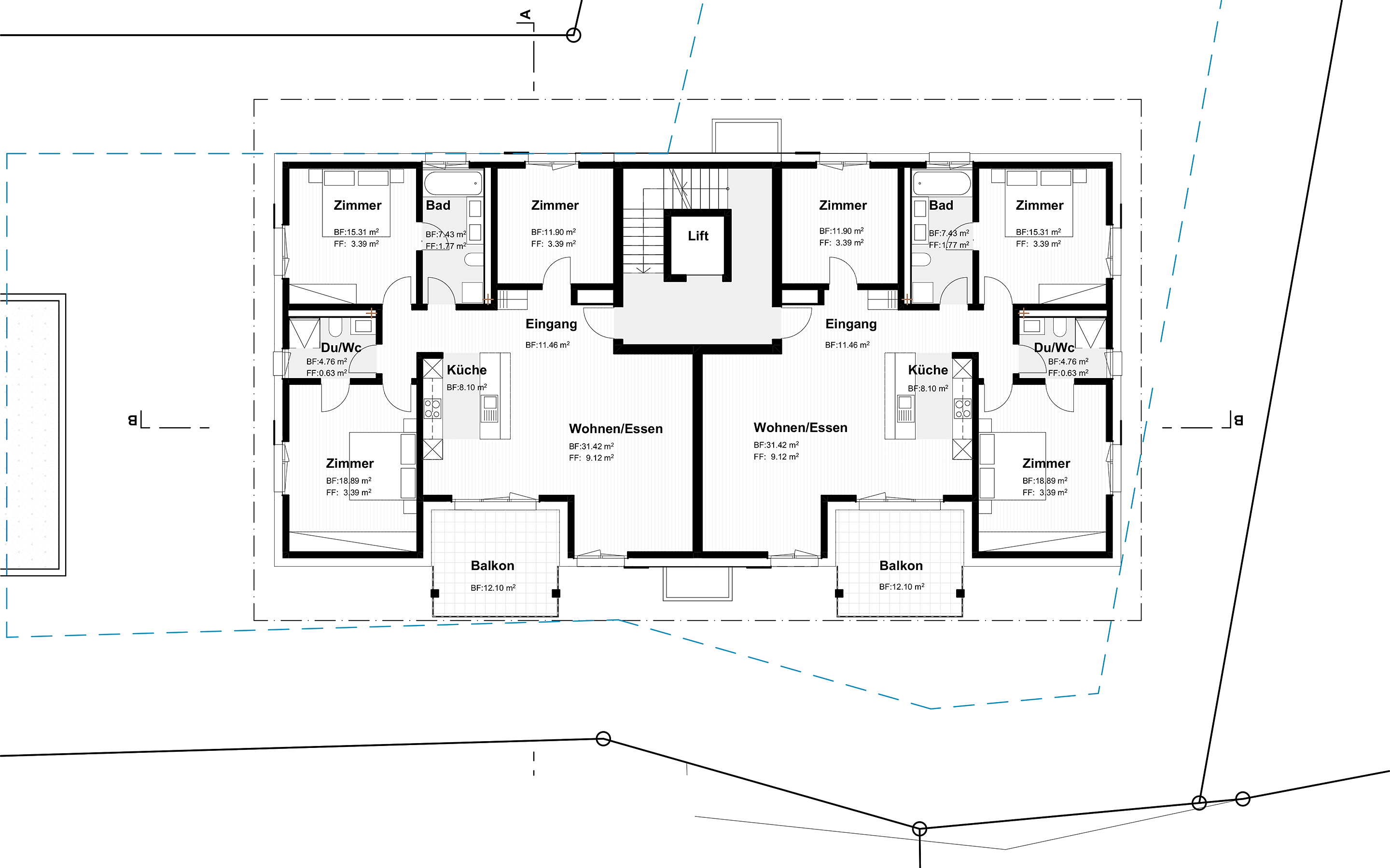
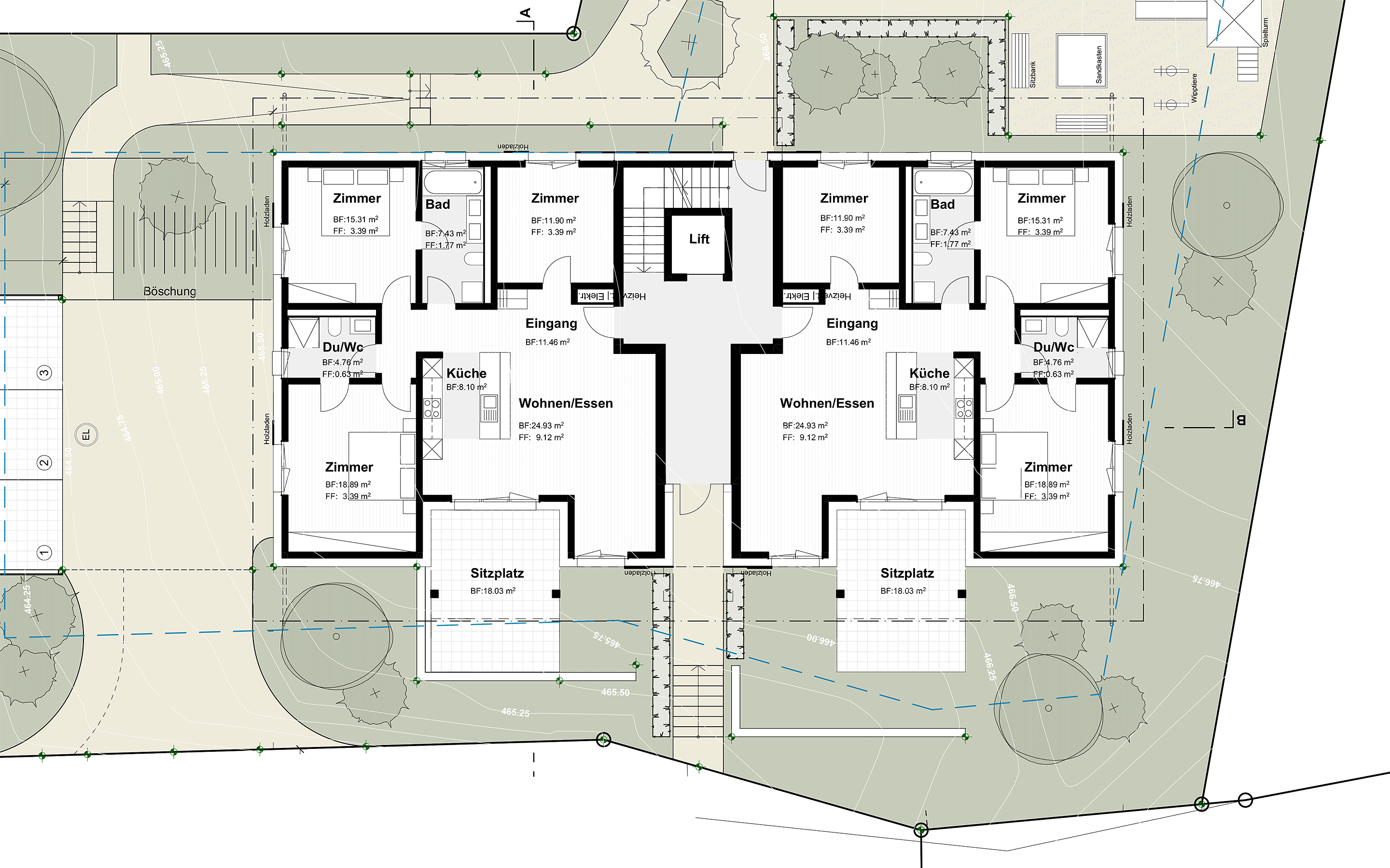
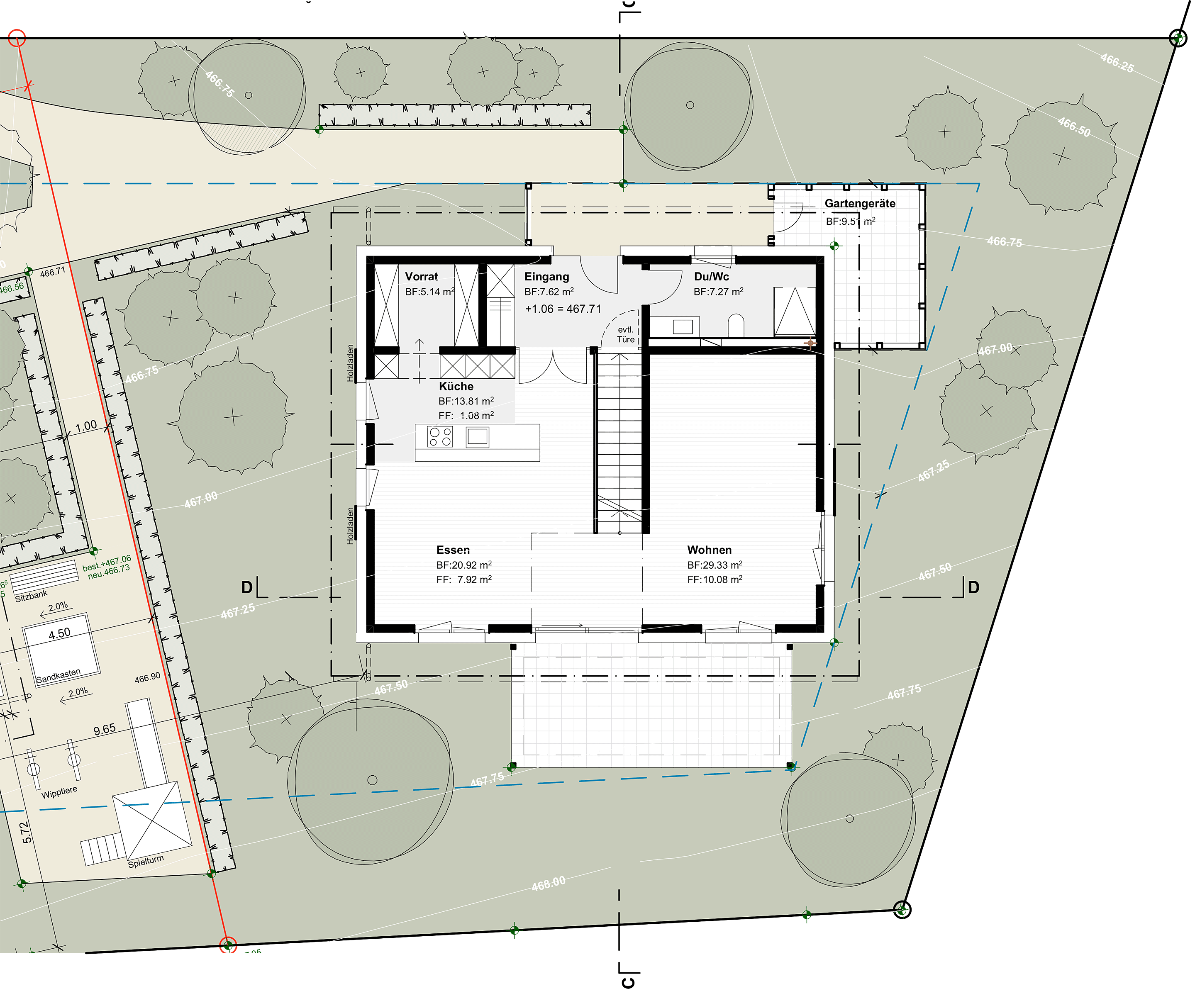
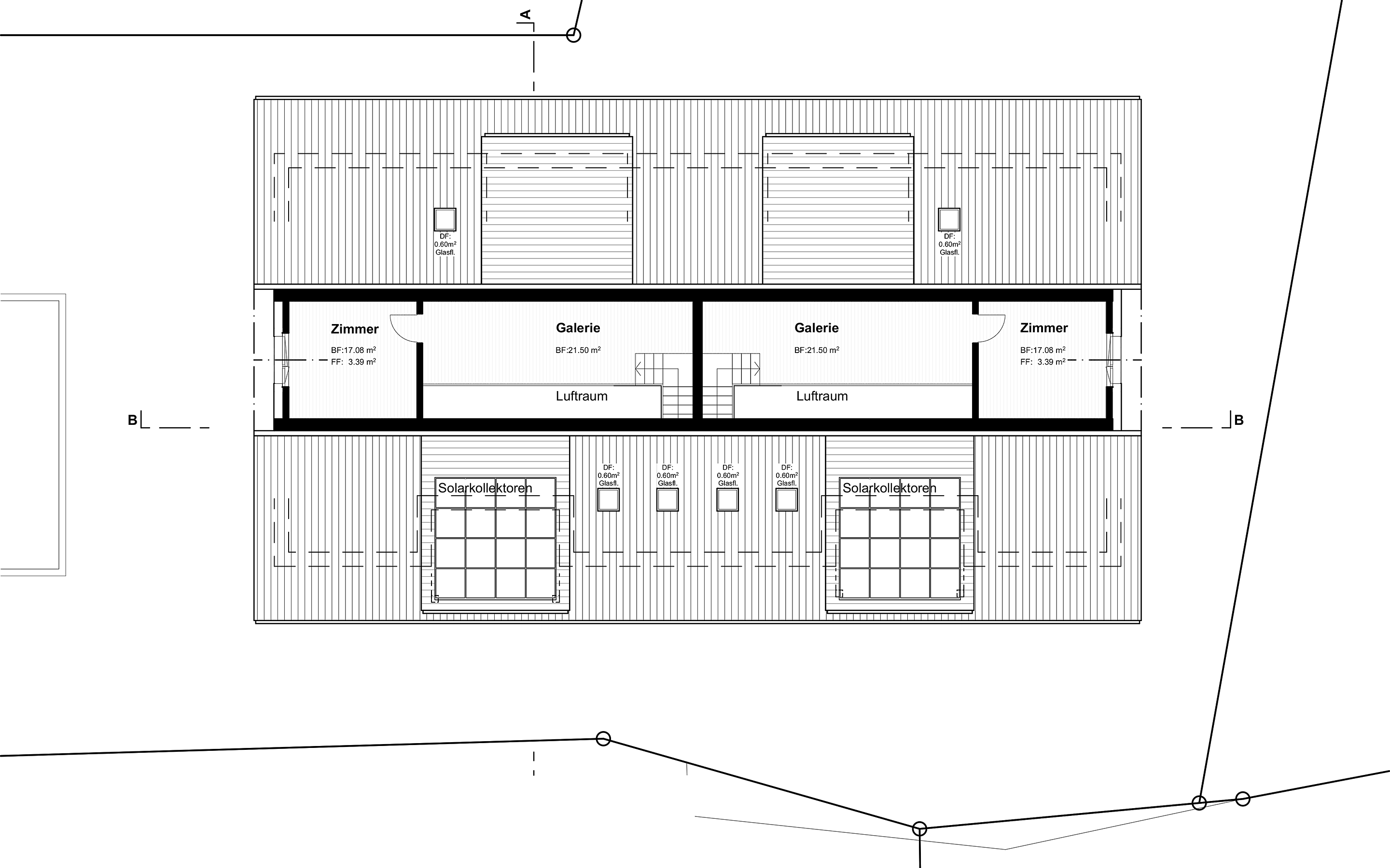
In dieser attraktiven Umgebung entstehen ein Einfamilien- und ein Mehrfamilienhaus. Vier 4½-Zimmer-Wohnungen im Erd- und Obergeschoss sowie zwei 5½-Zimmer-Wohnnungen auf zwei Ebenen im Dach- und Kehlgeschoss stehen zum Verkauf im Mehrfamilienhaus. Das Einfamilienhaus mit Keller-, Erd- und Dachgeschoss wird in einer neuen separaten Parzelle gebaut.
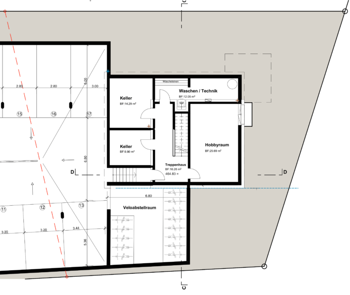
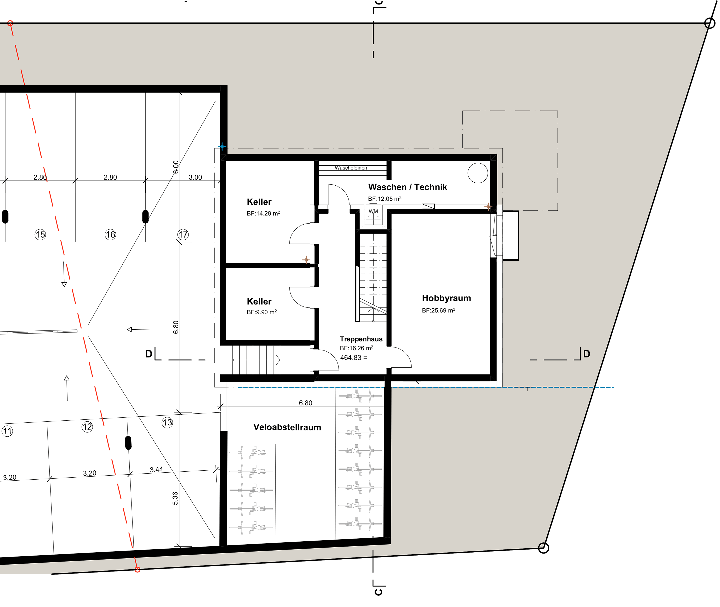
Die beiden Baukörper verfügen über ein gemeinsames Untergeschoss mit offener und gedeckter Einstellhalle und den Kellerräumen des Einfamilienhauses.
Die Kellerräume des Mehrfamilienhauses liegen unterhalb der Einstellhalle in einem separaten Geschoss. Sie sind mit dem Lift bequem erreichbar.
Der Baustart dieses Projektes ist für Mai 2025 geplant. Für den Verkauf und die Beratung von dieser ausserordentlich attraktiven und gut gelegenen Immobilie kontaktieren Sie bitte Rosmarie Obergfell. Alle Kontaktangaben finden Sie unten auf dieser Seite oder unter Verkauf & Beratung.
Verbindungen zu Zentren
Winterthur ist mit dem PW in 10 Minuten erreicht, Zürich in 27 Minuten – auch mit dem ÖV.
Weitere Distanzen mit dem PW:
- Zürich-Flughafen: 27 Minuten
- Frauenfeld: 17 Minuten
- Schaffhausen: 18 Minuten























