Vier Reihen-Einfamilienhäuser
An der Sägestrasse in Oberwangen, Ortsteil der politischen Gemeinde Fischingen im Kanton Thurgau, entstehen diese vier grosszügigen Reihen-Einfamilienhäuser. Die Baubewilligung liegt vor und der Baubeginn ist auf Juni 2025 geplant.
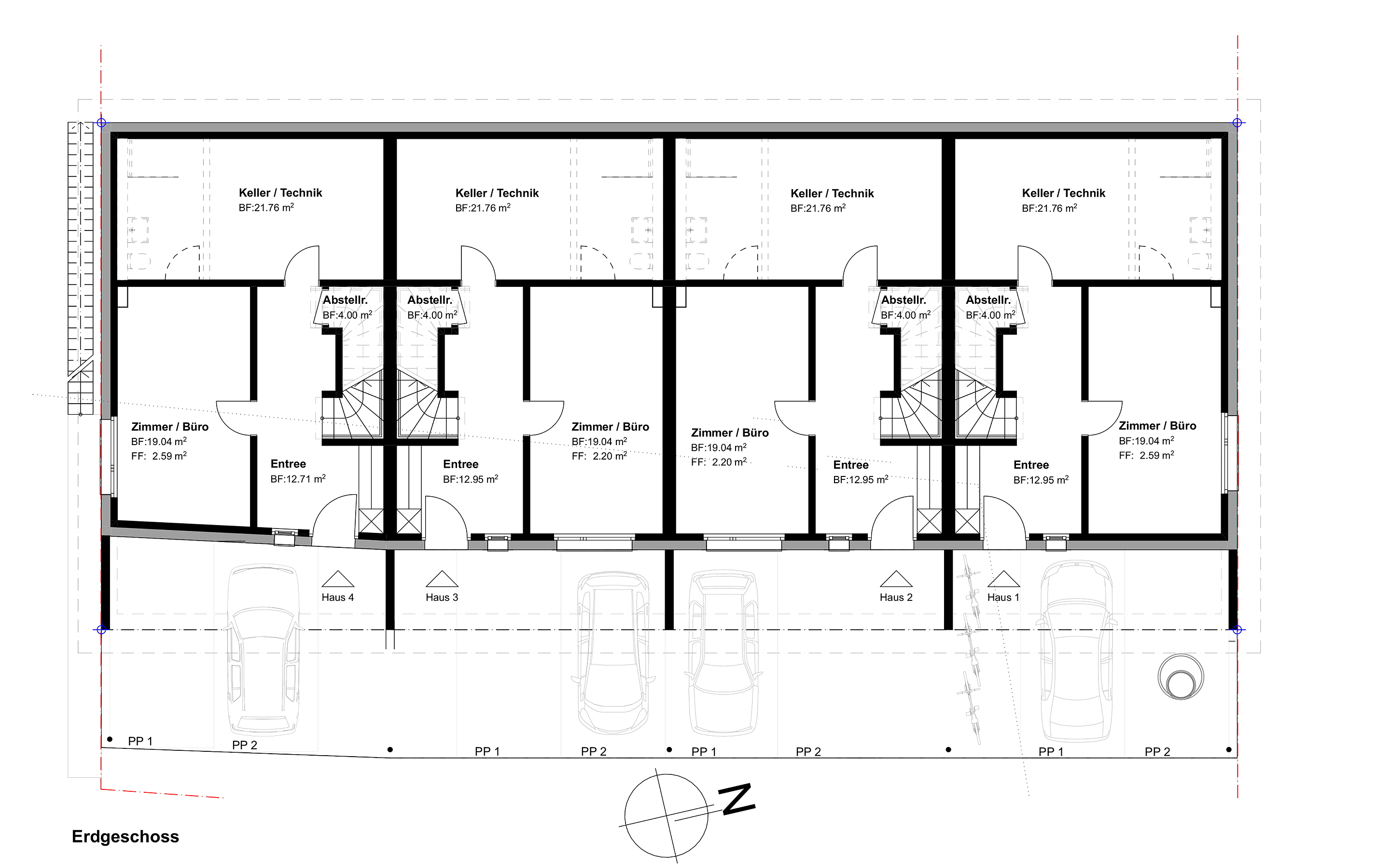
Für jedes Haus stehen zwei Aussenparkplätze zur Verfügung, die direkt von der Sägestrasse aus erreichbar sind. Im hinteren Teil der Parzellen, mit Gärten, Rasen und Wiesen – erhöht durch die Hanglage – entstehen zudem gedeckte Sitzplätze.
Flächen
Alle vier Häuser verfügen über rund 267 m² Brutto-Wohnfläche. Diese verteilt sich auf vier Geschosse; vom Erdgeschoss bis zum Dachgeschoss. Die Räume sind so konzipiert, dass sie der Geländeform entsprechend perfekt angepasst sind.
Die Grösse der Parzellen ist recht unterschiedlich; zum Teil aufgrund der vorgegebenen Struktur und Ausdehnung der gesamten Liegenschaft. Andererseits durch die Lage des Baukörpers und die zusätzliche Fläche links und rechts davon durch die vorgeschriebenen Abstände zur Grundstücksgrenze.
Die Beratung und der Verkauf dieser attraktiven Reihen-Einfamilienhäuser liegen in den kompetenten Händen von Rosmarie Obergfell, die Immobilienexpertin im Thurgau. Alle Kontaktangaben finden Sie unten auf dieser Seite oder unter Verkauf & Beratung.
Lage
Oberwangen und Dussnang bilden bezüglich Zahl der Einwohnenden das eigentliche Zentrum der politischen Gemeinde Fischingen mit ihrem berühmten Kloster der Benediktiner Möche.
Wil und Winterthur, die nächstgelegenen grösseren Zentren, sind in kurzer Zeit erreichbar und der Autobahnanschluss an die A1 nur 7 Fahrminuten entfernt. Damit sind auch die grossen Zentren Zürich (inkl. Flughafen) und St. Gallen mit wenig Fahrzeit erreichbar.
Damit vereint dieses Projekt gewichtige Vorteile: Eine ruhige Lage in einer aussgewöhnlich schönen Umgebung und Landschaft («Tannzapfenland») und mit kurzen Wegen zu wichtigen Zentren. Joggen, Biken, Wandern, in einem der 40 Vereine die Freizeit oder das Hobby aktiv gestalten – alles ist möglich.
Fahrzeiten nach:
- Autobahn A1: 7 Minuten
- Wil: 12 Minuten
- Winterthur: 28 Minuten
- St. Gallen: 26 Minuten
- Zürich: 40 Minuten
- Zürich-Flughafen: 41 Minuten
ÖV-Verbindungen:
- Wil: 24 Minuten
- Winterthur: 43 Minuten
- St. Gallen: 50/68 Minuten
- Zürich: 66 Minuten
- Zürich-Flughafen: 60 Minuten


















