Einfamilien-Terrassenhäuser in Dussnang
Ein wichtiges Merkmal dieser Bauform? Der freie Blick und die bevorzugte Hanglage.
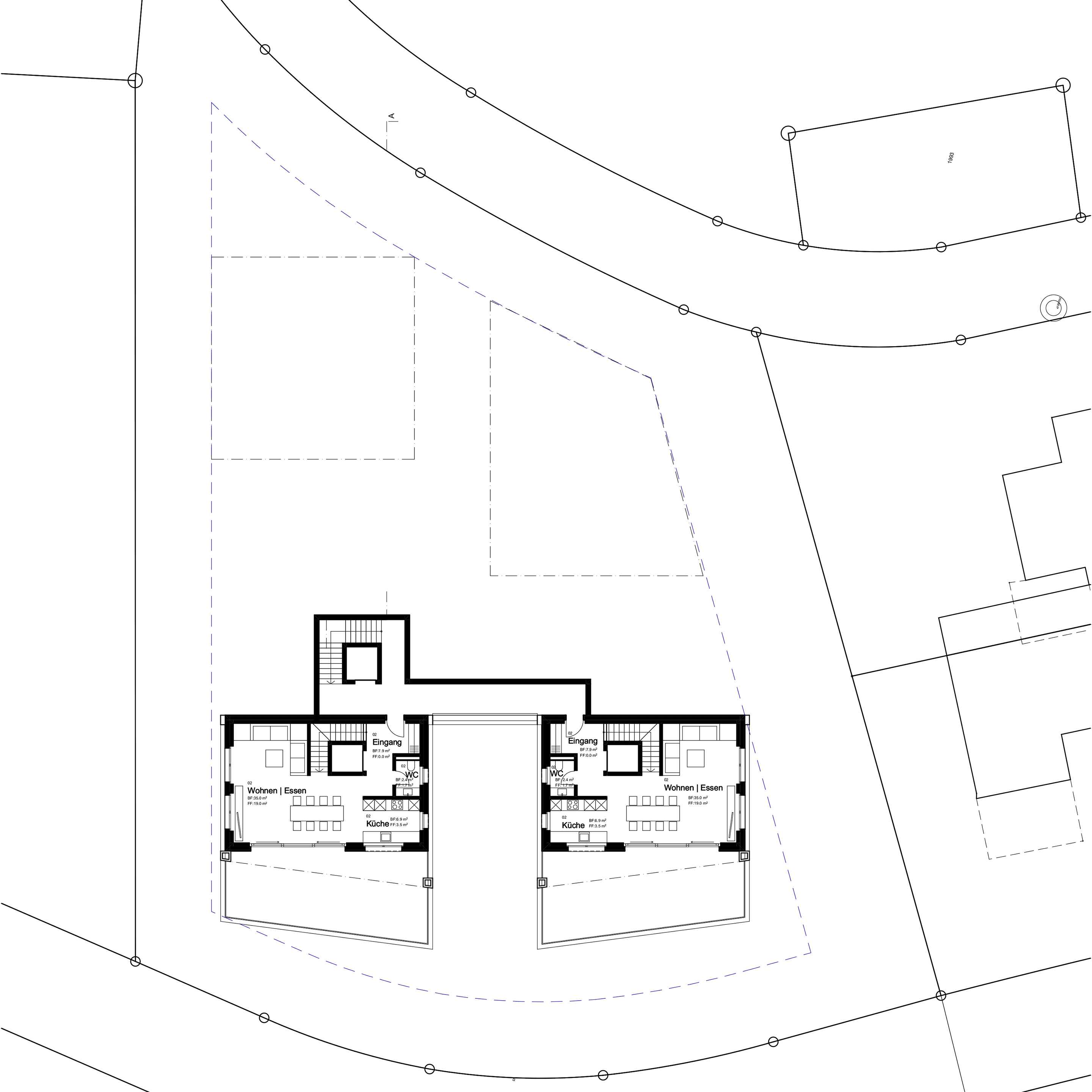
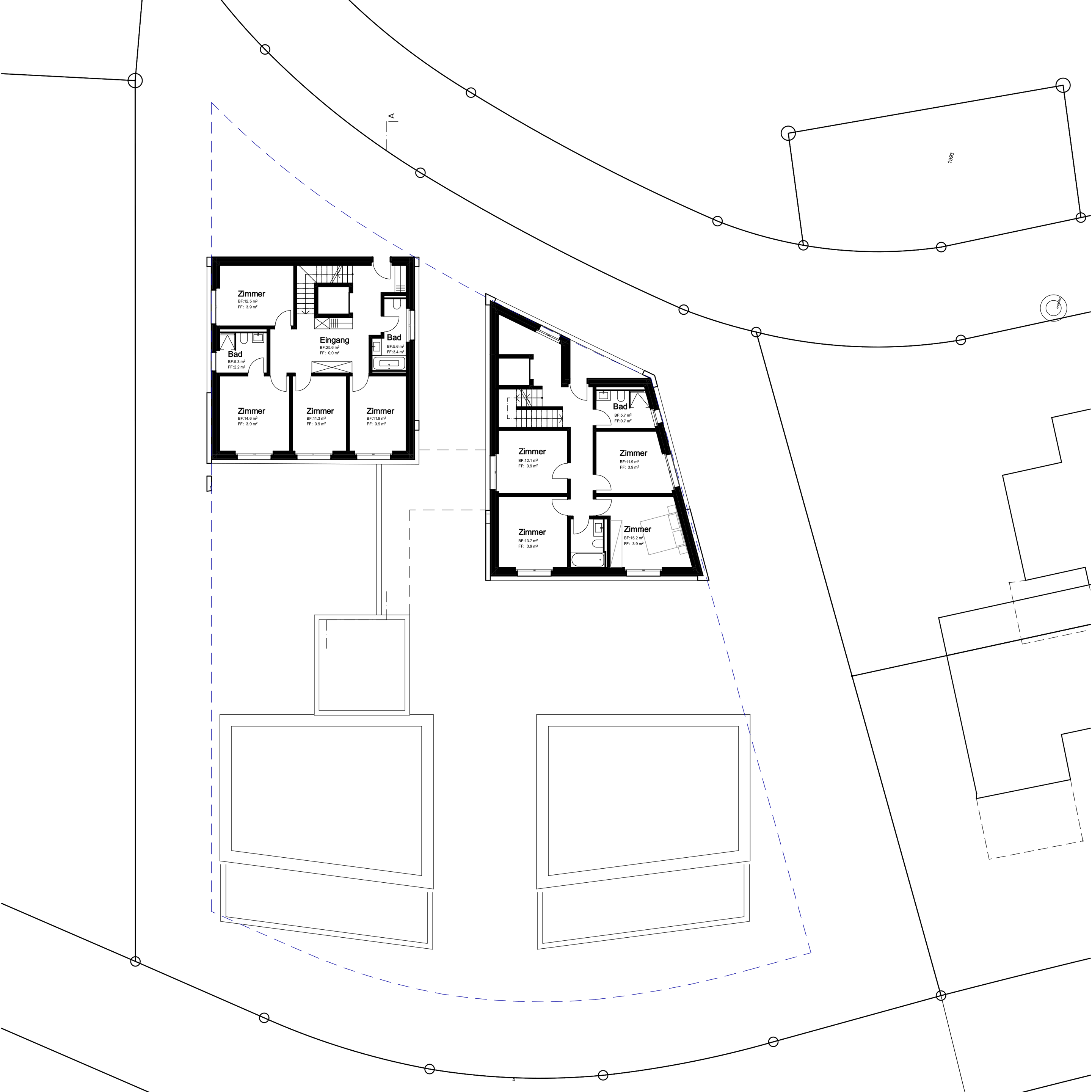
Und diese Einfamilienhäuser können mit weiteren Annehmlichkeiten punkten: Weinkeller, bequeme Zu- und Ausfahrt von einer Einstellhalle und grosszügige Grundrisse mit grossen Terrassen im Obergeschoss.
Die klare Gliederung der Baukörper – sowohl der vier Häuser als Ensemble als auch der einzelnen Häuser – wirkt modern und offen. Architektur und Raumkonzepte in den einzelnen Geschossen bieten ganz unterschiedliche und attraktive Möglichkeiten; ob Kinderzimmer, Büro, Wohn- oder Schlafzimmer.
Die grosse Terrasse im obersten Geschoss erweitert in den wärmeren Jahreszeiten den Wohnbereich ganz erheblich und bietet zudem Platz für zahlreiche Outdoor-Aktivitäten.
Der Baustart für diese besonderen Terrassenhäuser ist für 2026 geplant. Haben wir Ihr Interesse geweckt und Sie brauchen weitere Informationen oder eine Beratung? Kontaktieren sie uns! Sie finden alle Angaben am Schluss dieser Seite.
Lage
Dussnang, mit der bekannten Reha-Klinik, ist, zusammen mit seinem östlichen Nachbarsort Oberwangen, Teil der politischen Gemeinde Fischingen im sog. Tannzapfenland des Kantons Thurgau. Über 50 Vereine bieten ein breites Spektrum für Sport, Musik und weitere Freizeitaktivitäten.
Die ruhige Umgebung ist geprägt von weiten Ebenen und sanften Hügeln mit Wiesen und Wäldern, die zum Spazieren, Joggen, Wandern oder Biken einladen.
Fahrzeiten nach:
- Autobahn A1: 7 Minuten
- Wil: 12 Minuten
- Winterthur: 28 Minuten
- St. Gallen: 26 Minuten
- Zürich: 40 Minuten
- Zürich-Flughafen: 41 Minuten
ÖV-Verbindungen:
- Wil: 24 Minuten
- Winterthur: 43 Minuten
- St. Gallen: 50/68 Minuten
- Zürich: 66 Minuten
- Zürich-Flughafen: 60 Minuten



